Как сделать садовую беседку своими руками. Чертежи и размеры для самых красивых беседок
- Как сделать садовую беседку своими руками. Чертежи и размеры для самых красивых беседок
- Беседка своими руками из металла. Беседка металлическая – разбираемся в нюансах строительства
- Простая беседка из дерева своими руками. Беседки с полом и без него
- Простая беседка своими руками за один день. Из какого материала можно построить беседку за один день
- Самая простая беседка своими руками. Какие бывают дачные беседки
- Как сделать беседку своими руками дешево. Выбор материалов и конструкции
- Беседка своими руками из подручных материалов. Выбираем материал для садовых беседок своими руками
- Беседка своими руками чертеж. Крыша
Как сделать садовую беседку своими руками. Чертежи и размеры для самых красивых беседок
Садовая беседка, сделанная своими руками, способна стать центром притяжения всех членов семьи и друзей на отдыхе на даче. Обычно беседки мастерят из деревянных реек и вагонки. Крышу кроют мягкой черепицей, шифером или жестяными листами.

Можно выделить самые популярные беседки по форме:
- прямоугольные;
- квадратные;
- округлые;
- шестигранные;
- трапециевидные.
Это самые простые и эффектные варианты для садовой беседки, которую можно смастерить своими руками на участке довольно быстро. Чертежи и фото самых простых и красивых вариантов приведены далее.


Есть несколько основных этапов в строительстве беседки, которые важно соблюдать:
- Подготовка места. Следует очистить площадь под беседку, выровнять ее. Если легкое архитектурное сооружение возводится на грунте, то лучше убрать чернозем и засыпать камнем, щебенкой. Для защиты от растений, которые могут прорасти под полом, можно застелить участок под беседкой рубероидом.
- Затем нужно сделать фундамент или основание пола из лагов или кольев.
- После выложить балки пола.
- Возвести основание стен.
- Настелить пол.
- Обшить стены.
- Сделать каркас крыши и покрыть ее.
Размеры всех деталей можно взять из чертежей и фото уже готовых беседок или рассчитать по собственной задумке.




Затем следуют декоративные работы. Можно сделать решетки на оконных проемах, обшить стены внутри вагонкой, покрасить их. Рассмотрим самые красивые и интересные варианты беседок с пошаговыми инструкциями для их возведения.
Беседка своими руками из металла. Беседка металлическая – разбираемся в нюансах строительства
Беседки из металла представляют собой красивые и недорогие конструкции, подходящие для установки на территории частных домовладений или городских парков и скверов. Железный каркас отлично сочетается с различными отделочными материалами, и в этом плане он универсален. Возведение таких построек возможно на любом типе грунта и не требует специальных навыков и знаний. Разборную конструкцию из металла можно в любой момент собрать или разобрать либо перенести в другое место, что выгодно отличает ее от деревянных аналогов. Пользователи часто ищут Каркас из стальных труб хорошо сочетается с обшивкой из различных материалов, что позволяет воплотить в жизнь смелые дизайнерские задумки. Металлические беседки выглядят современно и стильно, будь то классическая кованая конструкция или постройка из профиля. При этом такое сооружение надежное и благодаря прочностным свойствам металла прослужит десятилетия. Элементы основы для беседки, как правило, собираются из труб, имеющих разные типы сечений: Возможны варианты каркасов с использованием профиля или уголков. Элементы соединяются друг с другом при помощи сварки, а в местах подвижных соединений применяются болты или штыри. Садовые и парковые сооружения для отдыха, как правило, имеют четырех- или, но встречаются и. Чем больше углов в каркасе, тем сложнее процесс сборки, зато такие конструкции выглядят оригинальнее. Дляокруглой формы подходит поликарбонат, который легко гнется и позволяет создавать арочные и шарообразные конструкции. Для создания закрытого пространства стены обшивают полностью – такие постройки защищены от негативного воздействия погодных явлений. В свою очередь, открытые беседки позволяют насладиться единением с природой и свежим воздухом. Чтобы сделать беседку, потребуется составить подробный план, по которому можно подсчитать количество необходимых материалов. В чертеже указываются тип конструкции, точные размеры, а также сведения о каркасе и обшивке. Составляя чертеж, учтите, что существуют стандартные требования к беседкам и их габаритам. Высота конструкции не должна быть менее 2,3 м, а на каждого отдыхающего должно приходиться как минимум 4 кв. м площади постройки. При этом чертеж можно составить самостоятельно или же выбрать готовый – оба варианта допустимы. Главное – соблюдение пропорций и размеров. План содержит вид постройки сверху и фронтальную схему сооружения. Можно воспользоваться компьютерными программами и создать 3D-модель беседки, которая отразит каждую деталь будущего сооружения. Это особенно актуально, если постройка отличается сложной конструкцией. После составления проекта начинают сборку каркаса. Прежде чем залить фундамент бетоном, по методу «египетского треугольника» (или любому другому) делают разметку площади. Затем в запланированном месте снимают слой земли 15-20 см. В получившийся неглубокий котлован засыпают песок толщиной 5 см, который утрамбовывают водой. После этого устанавливают временные деревянные конструкции, выполняющие роль опалубки. Далее для укрепления будущего фундамента укладывают сетку из арматуры. Сварить элементы сетки не получится, специалисты рекомендуют применять только крепление проволокой. Это избавит от проблемы появления ржавчины на местах соединений. На заключительном этапе котлован с сеткой заливают бетонным раствором, а поверхность полученной площадки выравнивают. Как вариант, для создания прочного ровного пола в беседке используют классическую брусчатку, однако это удорожает стоимость работ.Металлические беседки для двора
Составляющие каркаса
Конфигурации беседок
Поэтапное строительство
Строительство пола
Простая беседка из дерева своими руками. Беседки с полом и без него
Существуют беседки с полом, а также беседки, смонтированные на открытой площадке или площадке, где сделана бетонная стяжка или выложена тротуарная плитка. Если строить беседку просто на земле, тем более деревянную, то нужно принять меры для защиты деревянных конструкций, особенно в местах, которые контактируют с грунтом. Если беседка из металла, то придется защитить ее от ржавчины.

Деревянная беседка без пола, сооруженная из дерева. У нее имеется одна особенность: крыша четырехугольная, а сама беседка со скошенными углами.
Строительство беседки с полом предполагает установку фундамента. В основном, ограничиваются столбчатым фундаментом, который делают из кирпича или бута, заливают бетоном или же монтируют на фундаментных блоках. Как вариант, можно использовать большие камни (валуны) и на них опереть всю постройку, если таковые имеются в распоряжении. Такой фундамент подходит для легких, каркасных построек из дерева или из металла. Если постройка капитальная, из кирпича, то столбчатым фундаментом вряд ли удастся ограничиться: придется лить бетонный ленточный фундамент, хотя и в упрощенном варианте. Достаточно заглубить фундамент на 20-30 см.

Беседка из дерева, но с деревянным полом, установленная на опорах.
Чтобы выложить плитку в беседке, придется пол залить бетоном, но предварительно утеплив пол пенопластом, например, а также уложив слой гидроизоляции. После этого можно уложить плитку, причем половую морозостойкую. При этом, следует сделать так, чтобы пол выходил за пределы беседки сантиметров на 50 и эти 50 см должны быть выложены под уклоном, чтобы на плитке не удерживалась влага. Если беседка не закрытая, то вся плитка должна иметь уклон. Если влага на плитке не будет задерживаться, то плитка будет стоять достаточно долго.
Простая беседка своими руками за один день. Из какого материала можно построить беседку за один день
Беседка на дачном участке создана для того, чтобы обеспечить комфортный отдых и приятное времяпровождение. Такие конструкции бывают разной сложности и могут быть изготовлены из различных материалов.
Самый простой вариант, доступный для каждого садовода, — это лёгкая беседка без фундамента , которую можно соорудить за один день с помощью специальных инструментов. Для её изготовления можно использовать дерево, металл или поликарбонат. Выбор материала зависит от общего дизайна вашего участка, финансовых возможностей и предназначения конструкции.
Дерево
Для строительства беседки из дерева можно использовать практически любой брус. Такая конструкция чаще всего не имеет фундамента, а её основой служат кирпичи, небольшие бетонные блоки или тротуарная плитка . Их необходимо равномерно распределить по периметру будущей беседки.
Большим плюсом этого материала считается его доступность и простота в обращении. Чтобы увеличить срок службы конструкции, все деревянные элементы рекомендуется покрыть защитными средствами. Натуральная фактура дерева придаст строению первобытную красоту и очарование. Такая беседка органично впишется в любой экстерьер и подчеркнёт очарование окружающей природы.
Металл
Металлические конструкции с коваными элементами способны придать участку элегантность, утончённость и создать эффект лёгкости. В целом такие беседки достаточно прочные и надёжные, однако имеют ряд минусов.
Этот материал со временем подвергается коррозии, а содержать сооружение в хорошем состоянии постоянно достаточно проблематично и затратно. Также важно отметить, что далеко не каждому по силам установить такую беседку в одиночку. Для этого, как минимум, требуются навыки работы со сваркой, дополнительное оборудование и бригада помощников.
Поликарбонат
Этот материал набирает популярность среди садоводов, которые хотят создать на своём участке эффектное и стильное место для отдыха. В работе поликарбонат достаточно лёгкий и манёвренный, однако такое строение будет не долговечно. Это связано с ограниченным сроком службы материала: он пересыхает под воздействием прямых солнечных лучей и трескается.
Также для укладки поликарбоната вам потребуются специальные знания, ведь при неправильном монтаже в стыки будет попадать вода. В результате образуется конденсат, который приводит к быстрому изнашиванию. Но, в целом, при соблюдении всех правил, такие беседки смотрятся достаточно стильно и станут настоящим украшением вашего участка.
Самая простая беседка своими руками. Какие бывают дачные беседки
Желательно, но не обязательно, чтобы тип беседки полностью соответствовал общему архитектурному стилю строений и дизайнерскому оформлению территории земельного участка. Краткий обзор позволяет выделить несколько наиболее распространенных стилей:
- классика. Такая беседка должна иметь правильную геометрическую форму, четыре или шесть граней. В этом стиле приветствуется симметрия линий, соответствие пропорций, гармония форм;
- деревенский. Изготавливают беседку исключительно из натуральной древесины с использованием для декора элементов резного орнамента;
- дальневосточный. В этом стиле приветствуется простота форм, сдержанность, гармония. Акцентным конструктивным элементом является крыша, которая отличается своей необычной формой.
Какая она, беседка вашей мечты? Ведь подобных конструкций великое множество и все они чем-то между собой отличаются. Обладают своей собственной изюминкой. Одни несколько приподняты над землей и имеют прочный настил, другие устанавливаются прямо на ровную площадку, которая и служит им полом.
Это, казалось бы, незамысловатое деление, между тем носит определяющий характер. Ведь первые строения являются мобильными и в большинстве своем могут быть поставлены в любом месте, хоть бы и на бетонные блоки, тогда как вторые стационарные и устанавливаются только на предварительно подготовленных площадках.
Конечно, нет правил без исключения. Так, самые простые свои беседки деревенские жители располагают прямо на земле, и под хороший дождик внутри них образуется не меньше грязи, чем и за пределами навеса, но мы такой вариант рассматривать не будем. Нет никакой радости от отдыха, когда через ноги весело бегут ручейки.
Откажемся также и от стационарных павильонов. Сегодня вам нужна пергола, а завтра передумаете и захотите на ее месте разбить цветник. Как потом избавится от бетона?
По размеру
Отличаются меж собой беседки и по своему размеру. Но тут по потребностям. Кому-то нужен целый павильон, а для других за счастье поворковать и под маленьким зонтом. Заметим лишь, что небольшими габаритами отличаются покупные изделия. А вот своими руками можно организовать беседку из дерева какой угодно длины.
По открытости
Если не полениться пройтись по улицам и позаглядывать во дворы, то чаще всего вам будут попадаться на глаза обыкновенные открытые беседки, где в качестве стен используются только невысокие, около 80 сантиметров бортики. Такие конструкции по статистике встречаются в девяти случаях из десяти.
Но вместе с тем существуют еще и закрытые сооружения. Защищенные от непогоды стеклом или поликарбонатом, а то и вовсе имеющие каменные стены с большими оконными проемами. Не самое на наш взгляд логичное решение. Но если в вашем регионе с солнечные дни редкость, то почему бы и нет, тем более что внутри их проще создать атмосферу интима.
Средний вариант — предусматривает наличие плотных ограждений с возможностью быстрого монтажа панелей (допустим, из листов поликарбоната), превращающих их в полноценные стены, защищающие от ветра и дождя в осенний сезон.
Исходя из предназначения беседки как таковой, думается, что большинство дачников изберут для себя открытую конструкцию беседки.
По форме
В принципе, размеры, внешний облик постройки зависит от вкуса и предпочтения хозяина участка и количества членов семьи. Разместиться в саду под надежной крышей, пожелают все домочадцы! Выделяют следующие виды конфигурации дачных бесед:
- квадрат;
- прямоугольник;
- шестигранник;
- круг.
Существуют еще и комбинированные конструкции, но их возведение требует и специальных знаний, и наличия определенных навыков, и умения владеть профессиональными инструментами.
Целесообразно остановить свой выбор на небольшой дешевой постройке, способной порадовать и членов семьи, и гостей дачного дома.
По конструкционному материалу
И все же, первое на что следует обращать внимание при выборе рабочего проекта, так это на конструкционный материал. Те детали, из которых изготовлен силовой скелет строения.
Каменные беседки
На самом деле тут, конечно же, имеется в виду не дикий камень (хотя почему бы и нет), а вся группа штучных стеновых материалов, для работы с которыми необходимы кладочные смеси. Это может быть:
- Кирпич
- Газобетон
- Шлакоблок
- Ракушечник
- Ну, или сам бут
Готовые изделия могут, как угодно отличаться своим дизайном, размерами, видом кровли, но все они будут построены на крепком фундаменте и на века, а мы уже условились, что не будем своими же руками замусоривать участок бетоном. Да и недешевое это дело из камня перголы ваять. Из той же стали получится намного бюджетней.
Как сделать беседку своими руками дешево. Выбор материалов и конструкции
Наиболее бюджетным материалом для изготовления дачной беседки неизменным остается дерево. Но несмотря на низкую себестоимость, прослужит такой летний домик достаточно долго. Особенно если деревянные бруски еще и обработать различными антисептическими пропитками, которые спасут деревянную конструкцию не только от воздействия внешней среды, но и от нежелательных древесных вредителей и предотвратят от возгорания.
На создание такой беседки не уйдет много времени и не составит большого труда. Примерный срок изготовления при неспешной работе составит около трех дней.

Дачная беседка на основе металлических конструкций тоже прослужит не одно десятилетие, но стоимость такого изобретения будет в разы дороже. Да и к тому же периодически нужно будет обрабатывать металлические трубы различными защитными средствами для металла.
А владельцев дачных участков больше беспокоит создание качественных, не требующих особых усилий для изготовления и недорогих беседок.

Поэтому прежде чем построить беседку своими руками рекомендуется составить смету и чертеж будущей конструкции, где будут указаны все замеры и материалы для изготовления. А далее следует ознакомиться с проектами сооружений. Итак, как дешево и красиво смастерить летнюю беседку для отдыха и что для этого необходимо? Перед постройкой нужно выбрать подходящее место для конструкции, где перед стартом работ следует удалить верхний слой земли примерно на 10–15 см и утрамбовать.


Важно знать, что самым дешевым вариантом будет оставаться беседка из деревянных конструкций без использования металлических составляющих.

Но перед ее созданием следует учитывать некоторые нюансы. Допустим, если для беседки из дерева делать фундамент из бетона, то срок службы такой конструкции будет не более 5 лет. Так как длительное соприкосновение дерева с бетоном приводит к дальнейшему гниению из-за повреждения, несмотря на предыдущее обрабатывание антисептиками. А, вследствие этого, и дальнейшее разрушение конструкции.

Лучшим способом защиты деревянной беседки будет обработка деревянных опор битумом или рубероидом.
Если все-таки решили сделать основание конструкции бетонным, то рекомендуется при заливке поместить в нужных местах небольшие металлические трубы, чтобы концы были не менее 30 см от основания бетона. Далее, в них проделываются отверстия для крепежных элементов, которые в дальнейшем будут поддерживать конструкцию многие годы.

Для дальнейшей защиты от сильного ветра необязательно сооружать ограждения из кирпича. Достаточно будет изготовить ограду из евровагонки высотой около 80 см, укрепив ее двумя продольными брусьями. Такое ограждение вполне защитит от порывистых ветров.


Беседка своими руками из подручных материалов. Выбираем материал для садовых беседок своими руками
Если у вас еще нет своей собственной альтанки, тогда вы обладаете замечательной возможностью создать уникальную конструкцию, опираясь на свои предпочтения. Это не настолько трудно, как, возможно, кажется поначалу. Стоит решить, для чего будет использоваться ваша беседка. Обычно ее строят для того, чтобы отдыхать в ней в одиночестве и большими компаниями. Здесь важно определить, сколько в будущем людей планируется размещать внутри помещения. От этого, конечно, зависит размер сооружения.

Беседка из подручных материалов
В случае планирования маленькой беседки для одного-двух человек, она делается совсем небольшой. Внутри можно просто повесить гамак или поставить пару лежаков для особого уюта. Если хотите собираться компанией побольше, попробуйте организовать только стулья или скамейки, а также стол и больше не занимать место никакими предметами. В среднем размер можно сделать 13 квадратных метров. В беседке крупнее некоторые устанавливают какой-то очаг тепла, например, мангал и наслаждаются временем общения в погоду похолоднее. При желании и возможностях возможно построить конструкцию с большими габаритами. Подобное строение подойдет для использования, как летней кухней. В ней можно поставить печь побольше, стол, больше мест для отдыха, какую-то мебель и даже оставить место, чтобы хранить личные вещи.
Разобравшись с размером беседки, можно переходить к выбору ее формы. Ниже показаны три типичных варианта:
- Прямоугольная. Его проще всего сделать самостоятельно. Как правило, этот тип выбирают, чтобы сделать навесы. Берут металл и кирпичи.
- Многоугольная. Распространено шесть и восемь углов для строительства при таком типе. Использовать лучше всего дерево или кованые металлические детали .
- Круглая. Чтобы сделать стены в подобном сооружении, придется использовать материалы, которые гнутся. Также выходом будет просто открытая конструкция. Прекрасно впишутся несколько колонн и лианы.
- Комбинированная. Когда применяются сразу несколько форм. Внутри может находиться не одно помещение.

Беседка открытого типа
Очевидно – наш павильон обязан подходить под общую картину дачного участка. От этого зависит выбор материала, формы, а также размера альтанки. Существуют следующие разновидности планирования стен:
- Открытые. Ставят только крышу и пол. Эту беседку легко устанавливать, даже переносить, поскольку ее можно построить разборную. Изменилась погода или вам хочется перемен в расстановке на участке – проблема легко решится. Вид на окружающую красоту будет открыт. Чтобы задекорировать площадь, можно возле опорных столбов поставить вьющиеся цветы.
- Закрытые. Со всеми стенами, с дверью и крышей. Отличная защита от знойного солнца, ветра и осадков. Помещение используют в качестве летней кухни, в которой можно оставить в теплое время года на ночевку своих друзей. Время приготовления еды перерастает в приятное времяпрепровождение.
- Полузакрытые. Стены устанавливают только на некоторых сторонах либо делают их до половины по высоте. Например, половинчатая стена может достигать в среднем одного метра. Таким образом, у вас хорошо получится оградить контуры павильона. Чтобы с комфортом находиться внутри беседки, можно установить стеклопакет возможный для съема. Интересным декором будут легкие занавески по краям беседки. Появится легкое ощущение, что вы находитесь на пляже возле какого-то океана. Вы закроетесь от солнца, а также сможете наслаждаться тем, как ветер колышет легкую ткань.
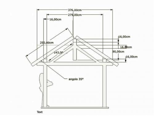
Беседка своими руками чертеж. Крыша
Выбор строения крыши полностью зависит от формы беседки. Если она прямоугольная выбор широкий: одно или двухскатная, четурехскатная. Прямоугольные беседки под односкатной крышей строить проще всего. Двускатная не намного, но сложнее.

Летняя прямоугольная беседка из кругляка под двускатной крышей
Если форма у беседки сложнее: пятиугольная, шестигранная, восьмиугольная, то придется делать шатровую крышу. Она еще сложнее: придется придумывать, как сделать соединение всех стропил в середине.

Купольная крыша — наиболее сложная. Если беседка своими руками строится впервые, и опыта работы с древесиной мало, лучше найдите другой вариант
При использовании гибкого кровельного покрытия и металла или ПВХ в качестве каркаса можно сделать крышу вообще округлой. Трубы гнут, на них крепят материал с уплотнителями под болты или саморезы. Такие садовые беседки очень легки на вид, построить их (при умении обращаться со сварочным аппаратом и трубогибом) можно за несколько часов.

Это, наверное, самая простая беседка: две гнутые трубы, которые закреплены на спинках садовых скамеек. К трубам прикреплен поликарбонат. Летняя садовая беседка готова
Вот и все. Другие ставят очень редко. Кстати, если вам интересны беседки под одной крышей с домом, их называют верандами. Прочитать о них можно тут.
Это вся теория вкратце. Могут быть еще какие-то частные случаи: материалов множество, как и возможностей их комбинации. Наиболее интересные оригинальные беседки из нестандартных материалов опубликуем в конце статьи. А теперь — практика.