Tеплица из пластиковых труб своими руками. Особенности
- Tеплица из пластиковых труб своими руками. Особенности
- Теплица из черных пластиковых труб. Какую конструкцию можно собрать из пластиковых труб
- Теплица из полипропиленовых труб чертеж. Расчет необходимых материалов
- Теплица из пластиковых труб и поликарбоната. Подготовительные работы
- Теплица из труб ПВХ пошаговая инструкция. Трубы ПВХ для возведения теплицы: плюсы и минусы
- Какие трубы лучше для теплицы. Каркас теплицы из профильной трубы – чертежи и расчеты
- Теплица из металлических труб своими руками. Парник из профильной трубы своими руками – чертежи, фото и видео инструкции
- Мини-парник из пластиковых труб. Что означает понятие?
Tеплица из пластиковых труб своими руками. Особенности
Теплица из полипропиленовых труб – это интересное решение при ограниченной бюджете и любви к сооружению разнообразных конструкций своими руками. Закупка материалов не потребует больших финансовых затрат, а строительство – серьезной подготовки.
Все материалы можно купить в обыкновенном строительном магазине, для их скрепления друг с другом понадобится обычный клей или саморезы.


Для начала стоит остановиться на том, что собой представляют пропиленовые трубы и чем они отличаются от ПВХ. На самом деле, большой разницы между этими материалами нет. И одни, и другие трубы относятся к пластмассовым. Разница лишь в том, из какого полимера они изготовлены – полипропилена или поливинилхлорида. На эксплуатационных свойствах труб это не сказывается, единственное заметное отличие – в цене.


Полипропиленовые трубы имеют ряд достоинств.
- Устойчивость к коррозийным процессам. Пластиковые трубы не подвержены гниению или ржавлению в отличие от изделий из других материалов.
- Легкость в работе. Трубы из полипропилена легко гнутся в дугу или режутся. Из них можно создать любой замысловатый каркас. К тому же скрепить профили между собой и установить их в землю тоже достаточно просто.
- Малая масса. Полипропиленовые трубы весят мало независимо от того являются они однослойными или многослойными. Это является гарантией того, что без труда можно будет перенести цельный каркас, а не только в разобранном виде.


- Долгий срок службы. Изначально трубы из полипропилена предназначены для проведения коммуникаций, в частности водопровода, поэтому им придают повышенную прочность. Не подвергаясь таким нагрузкам, трубы могут прослужить 30–50 лет.
- Прочность. Помимо устойчивости к коррозии, такие трубы отличаются стойкостью к перепадам температур. Они не горят, открытый огонь вообще им нестрашен. Кроме этого, каркас из труб сможет выдержать сильный ветер, особенно если сделать основание армированным. Так, материал не поддается деформации под воздействием различных климатических факторов.


- Дешевизна. Пластиковые полипропиленовые трубы относятся к эконом сегменту, поэтому на закупку этого материала можно потратить весьма скудные средства.
- Привлекательный внешний вид. Обрабатывать дополнительно трубы из пропилена не придется. Они сразу же поставляются со специальным покрытием, которое не только повышает их прочностные качества, но и придает сырью красивый блеск. В итоге и вся теплица на таком каркасе будет смотреться отлично.


Теплица из черных пластиковых труб. Какую конструкцию можно собрать из пластиковых труб
На этот вопрос можно ответить коротко: практически любую, кроме каплевидной. Но перед тем как сделать теплицу из полипропиленовых труб своими руками, стоит рассмотреть все виды конструкций, чтобы выбрать самый оптимальный для вас вариант:
- Арочный тип считается самым устойчивым и надежным, к тому же он проще в изготовлении. Такую форму придают и капитальным теплицам из поликарбоната на фундаменте, и временным либо переносным пленочным парникам.
- Скатный тип имеет вертикальные стены и крышу с одним или двумя скатами. Как правило, такими делают постоянные сооружения, особенно когда они пристраиваются к капитальной стене дома или другой расположенной на участке постройки. Но бывают и разборные либо переносные варианты.
- Парники в виде шатра или купола строятся редко и обычно выполняют не столько утилитарную, сколько декоративную функцию. В изготовлении они сложнее двух предыдущих конструкций.
Высокая прочность пластика и его устойчивость к любым погодным явлениям позволяет использовать изделия из него для возведения каркаса капитальных теплиц, которые не планируется перемещать или убирать на зиму. А также и для отапливаемых сооружений, эксплуатируемых круглый год.
А легкость труб и простота их сборки – это те самые качества, благодаря которым стало так просто решать задачу, как сделать парник из пластиковых труб мобильным, позволяющим без лишних хлопот обеспечивать севооборот в огороде.
Варианты изготовления и способы сборки
Как построить теплицу из пластиковых труб своими руками, зависит от того, нужна ли вам постоянная, мобильная или разборная конструкция, а также от её пространственной формы. В любом случае сначала делается чертеж с обозначением всех узлов, размеров и отдельных элементов (двери, форточки), помогающий подсчитать нужное количество материалов.
Капитальные неразборные сооружения
Как правило, если теплица устанавливается на постоянное место для длительной эксплуатации, для неё делают фундамент. Он может быть сложен из кирпича или бетонных блоков, сделан из обработанного мощным антисептиком бруса или представлять собой неглубокую монолитную ленту из бетона.
Крепление каркаса к фундаменту выбирается в зависимости от его вида. Проще всего зафиксировать стойки или дуги на деревянном основании с помощью хомутов или полосок перфорированной металлической ленты и саморезов. К кирпичу и бетону крепить придется дюбелями. А в ленточный фундамент при заливке можно установить «стаканы» из труб большего диаметра, в которые впоследствии будут вставляться опорные стойки парника.
Еще более надежное крепление обеспечат отрезки арматуры длиной 60-80 см, вбитые в землю по внешнему периметру фундамента на равном расстоянии друг от друга.
Совет! Расстояние между стойками большой теплицы нужно выдерживать не более 100 см, а между поперечными прогонами не более 50-60 см.
Теплица из полипропиленовых труб чертеж. Расчет необходимых материалов

Теплица из ПВХ требует определить точное количество расходного материала. Если каркас планируется покрывать поликарбонатом своими руками, следует принимать во внимание то, что ширина одного листа такого покрытия составляет 2,05 метра.
5 сантиметров ширины листа идут на перекрытие стыка, а оставшиеся 2 метра будут закрывать теплицу. Чтобы не пришлось обрезать лишний поликарбонат, длина постройки должна без остатка делиться на 2.
Площадь разбивают на три полосы — две грядки и дорожку между ними. На грядке высаживается два ряда растений, поэтому каждая из них составит примерно 80-110 см. Оптимальная ширина прохода 60-80 см. По такой дорожке удобно ходить с ведрами и лейкой, катать небольшую тележку. В результате проектная ширина всего парника составит 2,2-3 метра.
Длина теплицы определяется по количеству высаживаемых растений, но следует учитывать некоторые нюансы. Устраивать мини-парник меньше 3 метров невыгодно, а для сооружения длиннее 6 метров нужен каркас из дорогостоящих материалов — металлических труб и леса.
Высота парника проектируется по размерам выращиваемой культуры.
К этим показателям добавляют пространство для скапливания горячего воздуха вверху. Для низкорослых растений практично рассчитывать расстояние от поверхности грядки до крыши в пределах 1,8-2,0 метра, а для вьющихся — 2,2-2,4 метра.
Для сокращения количества расходного материала путем уменьшения высоты парника можно устроить грядки ниже уровня земли. В этом случае придется выполнить больший объем земляных работ.
Если выбран арочный тип сооружения, то длину дуги каркаса определяют по такой формуле:
L — искомая длина дуги,
H — высота парника,
B — ширина теплицы.
Для всех габаритов единицей измерения является метр. Общая протяженность труб определяется умножением вычисленной длины на количество используемых дуг.
Число дуг зависит от шага, через который их планируют устанавливать. Для временных сооружений практичнее всего принять параметр равный 0,8-1,0 метра. В случае устройства неразборного парника шаг нужно уменьшить до 0,5-0,7 метра для усиления прочности каркаса.
Кроме определения длины дуг нужно вычислить метраж продольных стяжек. Обычно их бывает пять – по две с каждого бока и одна коньковая. Для крепления этих элементов на крайних дугах используют тройники, а на внутренних – крестовины. Для снижения стоимости каркаса можно применять специальные хомуты.
На монтаж торцовых стен предусматривается около 20 м труб, на двери — 5 м для одной створки, на каждую форточку — 2,5 м.
Под фундамент чаще всего используют деревянные бруски сечением 100 Х 100 мм. Бруски укладывают по бокам теплицы в один ряд, поэтому их общая длина будет равна периметру парника.
Для удобства расчетов составляют чертеж теплицы, на котором записывают расчетное количество материала. После приобретения всего необходимого приступают к сборке.
Теплица из пластиковых труб и поликарбоната. Подготовительные работы
Как сделать теплицу из поликарбоната и пластиковых труб своими руками? Перед началом возведения каркаса , следует продумать и систематизировать предстоящую работу. Для того, чтобы всё безошибочно произвести, нужно сделать следующее:
- Сначала выбирается подходящее место , где будет расположена теплица. Делается это таким образом, чтобы она располагалась на достаточном удалении от имеющихся на участке сооружений и массивной растительности. Освещение — тоже важный фактор при выборе места для парника, его нужно определить таким, чтобы световой период за день был на этом участке максимально длинным. И третий нюанс при выборе места — это рельеф . Важно, чтобы он был как можно ровнее, без холмиков и ям, а главное желательно располагать теплицу на ровной плоскости и не наклонять. Самым удачным окажется то место, в котором совпадут эти три фактора.
- Определиться с типом теплицы. От потребностей садовода будет зависеть тип теплицы. Если она необходима круглый год, то лучше её сделать на фундаменте и очень прочно закрепить, а также иметь ввиду, что пластиковые трубы имеют свойства давать трещины, от которых их невозможно защитить. Если теплица нужна лишь на летний период, то в случае использования пластика и поликарбоната можно её сделать складной . Переносная теплица конструируется по необходимости, но стоит помнить, что и её устойчивость к ветру необходимо будет предусмотреть.
- Подготовка чертежа . И последним моментом подготовки будет изготовление чертежа. Делается он достаточно просто, исходя из реальных площадей участка под тепличный домик. Можно воспользоваться готовым, стандартным, если размеры устраивают.
Теплица из труб ПВХ пошаговая инструкция. Трубы ПВХ для возведения теплицы: плюсы и минусы
Трубы из поливинилхлорида являются отличным и недорогим материалом, который применяется для создания теплиц и парников различных форм и размеров. Для того чтобы построить их, не требуется большого количества инструментов и специальных навыков, поэтому такой вид конструкции доступен даже для дачников или владельцев частных домов с небольшим достатком.
Теплица из труб ПВХ может быть изготовлена с покрытием из поликарбоната
Преимущества материала
Этот материал обладает большим количеством достоинств:
- сборка и разборка конструкции происходит довольно быстро;
- конструкция в разобранном виде не занимает много места;
- сооружение теплицы не требует наличия профессиональных навыков работы с материалом;
- небольшой вес;
- доступность материалов, невысокая их стоимость;
- высокая степень прочности и устойчивости готовой конструкции;
- длительный срок службы (более 10 лет);
- возможность создания теплицы любой формы и размера, монолитные конструкции;
- устойчивость к перепадам температуры и влаге, образованию коррозии, размножению грибка и плесени;
- экологичность.
Недостатки ПВХ-труб и теплиц из них
Недостатков теплиц из труб ПВХ немного, но они всё-таки имеются. Например, при установке конструкции в регионах, где преобладают сильные ветра, она может деформироваться. Полиэтиленовое покрытие является недолговечным, а также обладает плохими теплоизоляционными свойствами, поэтому его придётся менять раз в несколько лет или приобретать более дорогостоящий материал, такой как поликарбонат. Зимой же такую конструкцию использовать в северных районах страны будет невозможно.
Существует несколько видов теплиц из ПВХ труб, которые можно сделать своими руками.
- Арочные конструкции с полиэтиленовым или поликарбонатным покрытием.
Арочная теплица из труб ПВХ может быть изготовлена с деревянным основанием
- Сооружения с односкатной крышей, пристроенные к основному зданию.
Теплица из труб ПВХ может быть пристроена к вашему дому
- Теплицы с двускатной крышей с любым типом покрытия.
Каркас теплицы с двухскатной крышей из труб ПВХ может напоминать дом
Большой популярностью пользуются теплицы арочного типа, так как они легко и быстро возводятся, быстро демонтируются при необходимости.
Какие трубы лучше для теплицы. Каркас теплицы из профильной трубы – чертежи и расчеты
Работа в теплице чаще протекает по принципу: я разогнулся посмотреть, не разогнулась ли она, чтоб посмотреть не разогнулся ли я. Поэтому важно для облегчения и максимального комфорта труда правильно рассчитать высоту сооружения. Оптимально, если человек встанет в полный рост + 300-400 мм.
Подробный чертеж арочной постройки
Средняя эргономичная высота арочной теплицы – 1,9-2,4 метра – это по сути радиус сгиба поликарбонатного листа. Вспоминаем формулу длины окружности: L= π*D, где π – 3,14, D – диаметр = 2 радиусам.
Допустим, высота теплицы из профтрубы – 2 м, тогда L (длина окружности) = 3,14*4 = 12,56 м. Нам требуется половина этой длины — 12,56:2 = 6,28 м. Но это не рационально при использовании обшивки из поликарбоната, получается, что одного листа длина которого 6,0 м не хватит, придется дотачивать небольшую полосу, то же со стандартной длиной профтрубы. Чтобы избежать лишних затрат, необходимо уменьшить высоту теплицы, рационально если, Н=1,85-1,9 м, при ширине постройки 3,7-3,8 м.
Схема теплицы из профильной трубы, своими руками такую конструкцию можно изготовить практически без отходов материала
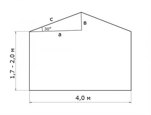
Для двускатной кровли расчет высоты зависит от уклона крыши, для разных регионов, в зависимости от ветровой и снеговой нагрузок, обычно укос составляет 30-45 о . Удобная высота прямой стены – 1,7-2 метра до нижнего края стропила. На примере просчитаем общую высоту теплицы из профильной трубы до конька.
Допустим, уклон двускатной крыши составляет 30 о , ширина теплицы 4 м. По теореме Пифагора: с 2 =а 2 +в 2 , где с – гипотенуза (длина одного ската), а – катет (перпендикуляр от края каркаса из профтрубы до середины), в – катет (высота от конька до прямой стены по перпендикуляру). В нашем случае: а = 4:2 = 2 метра. Из геометрии: катет, лежащий напротив угла в 30 о , равен половине гипотенузы. Составляем уравнение:
с=2х, отсюда (2х) 2 = 2 2 +х 2 , 4х 2 = 4+х 2 , 3х 2 = 4, х2 = 4:3, х = √1,33(3) = 1,154 м – это длина гипотенузы, значит, катет в = 0,58 м, отсюда общая высота теплицы из профтрубы: 2+0,58=2,58 м.
Изготовление теплицы из профильной трубы, чертеж стандартной двускатной постройки
Отметим важный нюанс, скат крыши должен на 100-300 мм быть длиннее чем сама теплица, поэтому его длина = 1,154+0,1(0,3) = 1,25-1,45 м – это необходимо учесть при раскрое профильной трубы для стропильной системы теплицы.
Теплица из металлических труб своими руками. Парник из профильной трубы своими руками – чертежи, фото и видео инструкции

Для получения большего урожая не обязательно устанавливать теплицу, достаточно соорудить парник небольшого размера. Он займёт не много места, и обойдётся гораздо дешевле.
Отличным решением в данной ситуации станет сооружение парника из профильной трубы своими руками, а размеры и чертежи вы найдете в данной статье. Эта надёжная и долговечная конструкция, позволит получать урожаи в более ранние сроки.
Так же предлагаем ознакомиться с пошаговой инструкцией — как сделать парник из полипропиленовых труб своими руками .
Преимущества парника из профильных труб
В парнике главная роль отводится каркасу, поэтому он должен быть прочный и иметь рёбра жесткости, которые будут держать форму и противостоять различным нагрузкам. Идеальным материалом для изготовления каркаса, будут профильные трубы из металла.
Они обладают рядом преимуществ:
- простотой в обработке;
- возможностью создавать конструкцию разной формы;
- длительным сроком эксплуатации — металлопрофильные постройки служат до 15 лет, а как показывает практика, то и намного дольше;
- не нуждаются в уходе и защите от вредителей;
- доступны по цене;
- сочетаются с любым материалом.
Помимо этого, по сравнению с деревянной конструкцией, постройка из профильных трубопрокатных материалов компактней, поэтому расположить ее на участке не составит труда.
Единственный недостаток данного сооружения — более длительное время возведения.
Выбор типа конструкции
Прежде, чем начать изготовление парника из профильных труб своими руками нужно определиться с моделью конструкции, и набросать чертёж. Ведь от формы сооружения зависит угол преломления солнечных лучей.
Основные виды парника из этого материала:
- Арочный — для возведения требуется специальное оборудование, чтобы придать форму. В остальном, имея изогнутые детали нужного размера и чертёж, собрать такой парник своими руками не составит большого труда. В арочной конструкции создаётся равномерное освещение, вне зависимости от расположения солнца.

Минус модели — ограниченная функциональность, так как высокие культуры вдоль стен не смогут расти.
- Односкатный — несложный вариант, монтируется к стенам жилых или хозяйственных построек. Использование данной компактной модели позволяет экономить не только место, но и стройматериалы.

- Двускатный или шатровый— отдельная постройка. В таком сооружении создаётся лучшая освещённость для культур, в отличие от односкатной.
Шатровый — простая конструкция, нет изогнутых элементов. Поэтому, огородники самостоятельно чаще монтируют именно её. Кроме того, плюс парника с двускатной крышей — возможность высаживать культуру разной высоты.

Стоит отметить, что шатровый вариант крыши обойдётся дороже арочного, так как для монтажа каркаса требуется больше материала, как основного, так и укрывного.

- Парник Фёдорова — в народе имеет название «хлебница», его легко изготовить самостоятельно на основе разработанного чертежа. Подходит для выращивания рассады, цветов и овощей, единственный минус — не предназначен для высокорослых культур. Конструкция простая, оснащена крышкой, которая открывает доступ для ухода за растениями.
Как сделать чертёж самостоятельно
Для изготовления парника из профильного трубопрокатного материала — можно использовать наземный или малозаглублённый вариант. Наземный удобен тем, что в нём полностью исключено затемнение, он предназначен для возведения в средних и южных широтах. В малозаглублённом типе парника тепло черпается из земли. Однако вблизи стен образуются затемнения, что отрицательно сказывается на росте растений.
При составлении чертежа парника из профильных труб стоит учитывать съёмные верхние части, которые будут обеспечивать доступ воздуха внутрь. Кроме того, чтобы каркас был более прочен, требуется предусмотреть специальные элементы, которые закрепляются вдоль стенок.
Наилучшим образом для каркаса подойдёт профиль с размером сечением 40×20 мм или 40×40 мм, так как имеет высокую прочность. Оптимальная толщина стен 2 мм и больше. Для изготовления горизонтальной стяжки можно брать профиль с толщиной стен тоньше 1-1,5 мм.
На чертеже необходимо указать точный размер — ширину, длину и высоту. Кроме того, следует указать места соединений основных и направляющих частей.
Ниже представлены чертеж с размерами для различных типов теплиц.

В соответствии с чертежом парника, в котором указываются размеры, рассчитываются затраты на постройку и составляется смета расходов. В процессе расчёта, следует накидывать 10% запаса, на случай повреждений при транспортировке или монтаже.

Источник: https://doma-na-veka.ru/stati/teplica-iz-metallicheskih-trub-svoimi-rukami-preimushchestva-parnika
Мини-парник из пластиковых труб. Что означает понятие?
Парником называется неотапливаемое строение небольших размеров, предназначенное для защиты растений от влияния неблагоприятных климатических и погодных факторов. Парники могут быть выполнены из различных материалов.
Парник из ПВХ труб — это помещение, у которого из пластика выполнен каркас. Для монтажа остальных элементов используются традиционные материалы. Например, в зависимости от вида покрытия, парник из ПВХ труб может быть холодным, теплым или полухолодным.
Следует отличать парники от теплиц. Они отличаются по внешним параметрам и перечню внутреннего оборудования :
- В парнике нет системы отопления. Температура внутри помещения поддерживается естественным способом за счет мульчирования гряд и проникновения солнечных лучей.
- Габариты парника гораздо меньше. Его высота рассчитана на выращивание низкорослых культур.
- Способ выращивания растений в парнике не предполагает наличия дополнительных приспособлений для гряд.
- Помещение имеет сезонное применение, поэтому отличается отсутствием дверей, форточек, искусственного освещения.
При проектировании парника из пластиковых труб возможно применение поликарбоната в качестве покрытия и возведение фундамента.
Где используют парниковый каркас из ПВХ?
Парники с каркасом из пластиковых труб п рименяют для выращивания овощей в личных целях . Для коммерческого использования они не пригодны из-за небольшой площади.
В них также нельзя вырастить высокорослые растения. Еще одно полезное применение парника — в качестве дополнительного укрытия подземных посевов. Такой вариант отличается бюджетностью и мобильностью. Может использоваться для защиты растений от заморозков до −5 °C.